PROJECTO

Recuperação de Ilha para Residências de Artistas
Rua de S. Vitor, Porto, Portugal

Bernardo Amaral

O edifício, localiza-se na Rua de S. Victor, na freguesia do Bonfim no Porto. Construído no logradouro de uma casa burguesa oitocentista, com frente para o Rio Douro, corresponde à tipologia de edificações portuenses para albergar a classe operária no início da Revolução Industrial – as ilhas.

A promotora da obra, artista plástica, propôs-se a trabalhar na sua execução, com o apoio de alguns amigos e técnicos. O grande desafio foi trabalhar com grandes contingências orçamentais e planear um projecto para a sua autoconstrução. Por vontade da promotora, era importante, que o projecto pudesse prever diferentes apropriações dos espaços e que questionasse os modelos tradicionais de habitar.

 

 

 

 

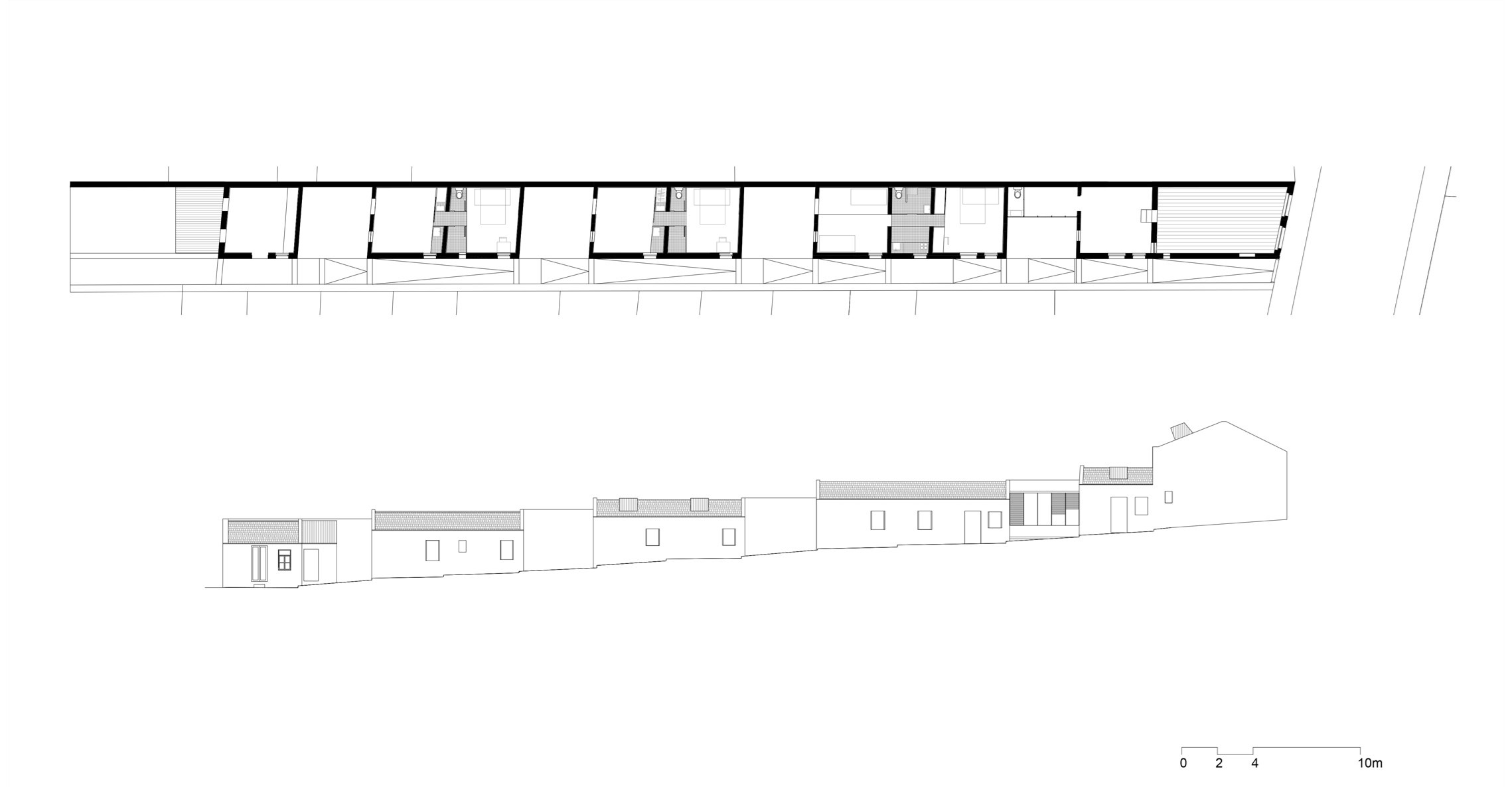
O lote tem 5,75m de largura e 60m de comprimento. A rua interior, com cerca de 1,40m de largura e um desnível de 4m desde a entrada, dava acesso a 8 casas de 14m2. Analisando os sistemas construtivos e plantas antigas encontrámos pátios entre cada duas casas, que foram, entretanto, ocupados com ampliações e anexos. Este desenho foi recuperado, devolvendo os pátios às habitações, permitindo desfazer o efeito de corredor da rua interna, e utilizar os mesmos como espaços de entrada nas casas. Desta forma, procuramos promover um espaço intersticial, entre a rua interna e a casa, potenciando uma zona exterior habitável, como um pequeno jardim ou alpendre.

 

 

 

 

Em termos de programa, o projecto concentrou-se no estudo de residências temporárias para artistas. Desde logo foi decidido que a casa-oficina, com entrada a partir da Rua de S. Victor poderia ser um espaço para actividades colectivas – exposições, aulas, conferências, entre outras. O pé direito alto, permitiu a construção de uma mezanine, onde poderia funcionar uma biblioteca. A casa anexa, foi pensada como um espaço polivalente, com entrada a partir rua da ilha ou da casa-oficina e no primeiro pátio criou-se uma estrutura envidraçada para receber uma bancada de cozinha e casa de banho. 

 

 

format=jpg
format=jpg
format=jpg
format=jpg

 

 

Os volumes, destinados a habitação de curta ou média estadia, foram agregados para tipologias T1, duplicando a área original das casas para 28 m2. Desta forma foi possível organizar uma sala ou espaço de trabalho com cozinha aberta e um outro quarto para habitação, onde se encontram as instalações sanitárias. No primeiro módulo, depois da casa-oficina, é uma excepção a este modelo, pois é aproveitado espaço onde funcionaram as instalações sanitárias comuns da ilha, como espaço partilhado de casa de banho e cozinha para dois módulos habitacionais, podendo funcionar como um T1 ou como dois estúdios com cozinha e banho partilhados.

 

 

format=jpg
format=jpg
format=jpg
format=jpg

 

 

Num certo sentido, este projecto desafia o determinismo formalista que caracteriza grande parte da arquitectura contemporânea, e que na minha opinião pode constituir um grande potencial a explorar, em determinados contextos. Foi um processo cheio de dúvidas e riscos de ambas as partes, vivido intensamente e com alguns conflitos. Mas os conflitos são necessários, quando servem de base para um processo criativo e construtivo, em que todas as partes contribuem. Foi um processo dialéctico, negociado e que me surpreendeu pela positiva. Hoje, habitada, esta ilha é um espaço de energia renovada e espero que possa estimular outros proprietários a reabilitar outros espaços idênticos. ◊

 

 

format=jpg
format=jpg
format=jpg
format=jpg
Planta de localização
Cortes longitudinais
Planta e Alçado sobre a rua interior
Detalhes construtivos

 

 


 

 

Arquitectura
Bernardo Amaral
www.baau.pt
Colaboração
Sarah Drouet
Data
2013 – 2015
 
Área de Construção
338m2
Cliente
Dalila Vaz
Fotografia
Attilio Fiumarella