PROJECTO

Reabilitação da Sede da Santa Casa de Misericórdia do Porto
Porto, Portugal

CREA

 

 

A abertura do Instituto Araújo Porto ocorreu em 1892/93, dando resposta a uma significativa lacuna no quadro da instrução pública portuguesa, no que respeita ao acompanhamento das crianças surdas-mudas.

Inicialmente utilizado como habitação familiar, o edifício do Instituto sofreu alterações construtivas na década de 90 do séc. XIX, no intuito de servir como estabelecimento de ensino. Durante os anos de funcionamento foram realizadas diversas de obras de ampliação e melhoramento/conservação da estrutura, nomeadamente através da introdução de elementos estruturais em betão armado, perfazendo uma área total de aproximadamente 1950m2.

 

 

 

 

Dando resposta ao programa transmitido pela Santa Casa de Misericórdia do Porto, de reabilitação e reconversão do imóvel presentemente devoluto para a futura Sede Corporativa da Instituição, o projeto foi desenvolvido pela CREA em parceria com a Misericórdia, alicerçado no Relatório de Inspeção e Ensaio, e procurou responder aos pressupostos programáticos associados à nova função, bem como a dotação de condições de conforto e gestão compatíveis com as exigências e tecnologias actuais, em articulação com a valorização e exponenciação do potencial arquitectónico do imóvel pré-existente – salas desafogadas de altos pés-direitos amplamente iluminadas, servidas por corredores interiores de distribuição e escadaria central.

 

 

 

 

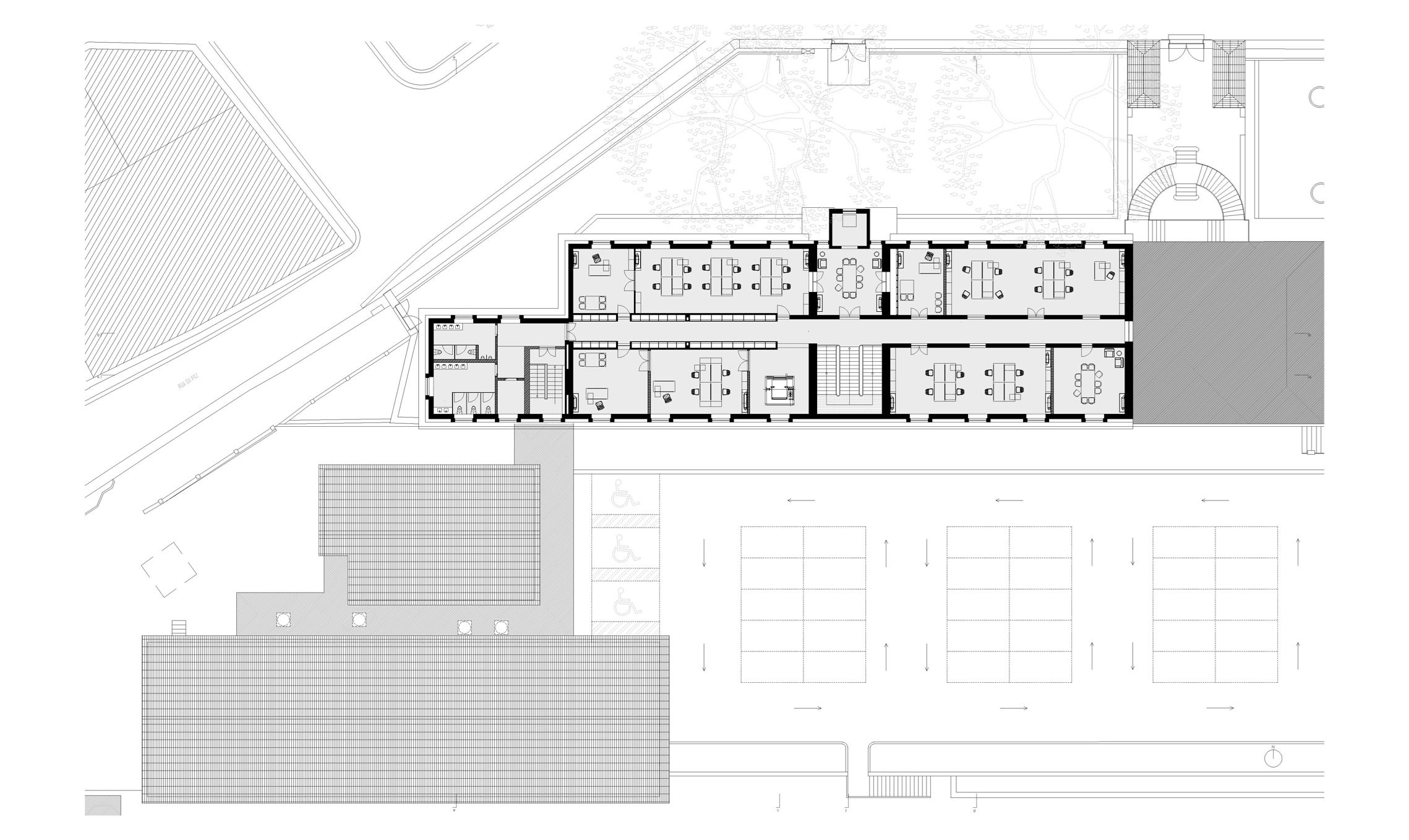
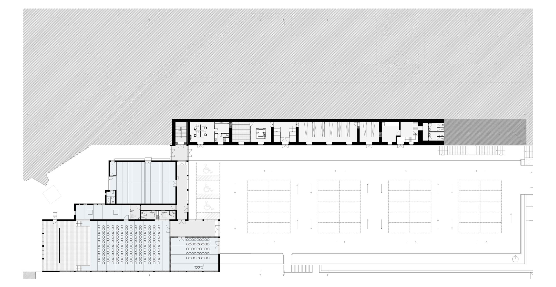
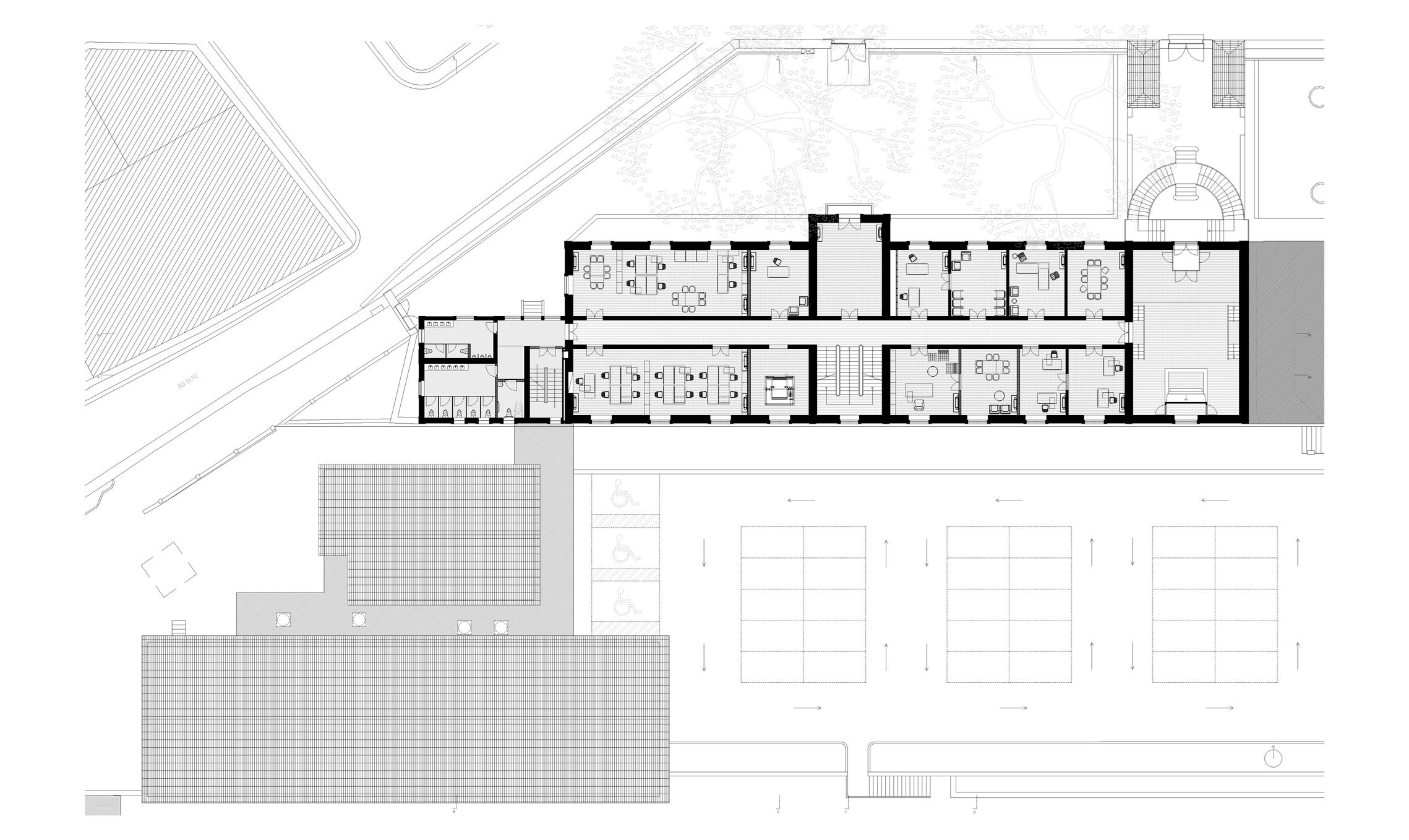
Constatou-se que o edifício existente permitiria absorver sem esforço o programa previsto. Associados aos departamentos, gabinetes e áreas técnicas ilustradas nas plantas arquitectónicas encontram-se previstos espaços de reunião e de actos solenes da Instituição: Salão Nobre, Cantina/Bar, a Capela, o Auditório e Sala Multimédia que se relaciona com um jardim exterior.

O parque de estacionamento a tardoz do imóvel principal foi pensado com vista a mitigar a leitura árida que o pátio exterior transmitia, incorporando os lugares de estacionamento protegidos por estrutura metálica que serve de suporte a cobertura vegetal superior, mancha natural que dilui a vista dos automóveis a partir do edifício.

 

 

format=jpg
format=jpg
format=jpg
format=jpg

 

 

A intervenção estrutural envolveu, sempre que possível, a utilização de materiais e técnicas tradicionais, de forma a garantir a preservação da identidade do edifício e, simultaneamente, o respeito pelos princípios da Reversibilidade, a Compatibilidade e a baixa intrusividade das soluções. 

As novas estruturas foram concebidas com materiais compatíveis com os existentes, tendo sido construída uma caixa de elevador em estrutura metálica e um prolongamento da escada de betão armado existente, com o mesmo material.

Apesar de ter sofrido alterações ao longo da sua existência, procurou-se manter a coerência expressiva do conjunto edificado, entendendo-se que a dinâmica dos tempos não venha aqui a ter o seu epílogo, constituindo esta intervenção uma mera etapa daquilo que esperamos ser uma, ainda, longa existência. ◊

 

 

format=jpg
format=jpg
format=jpg
format=jpg
format=jpg
format=jpg
format=jpg
Alçado sobre a rua
Corte transversal
Corte longitudinal no corredor central
Planta piso 0
Planta piso 1
Planta piso 2
Planta piso 3

 

 


 

 

Arquitetura
CREA
www.crea.pt
Especialidades
ASL & Associados
Entidade Executante
Costeira — Engenharia e Construção, Lda.
 
Inspecção e Ensaio
NCREP
Cliente
Santa Casa de Misericórdia do Porto
Fotografia
António Ataíde