PROJECTO

Real Vinícola
Matosinhos, Portugal

Guilherme Machado Vaz

Através de uma investigação do contexto histórico dos edifícios industriais da Real Vinícola, construídos entre 1897 e 1901, o projecto de arquitectura — 100 anos depois — tem como suporte as ruínas existentes no local e a sua reabilitação.

“No momento em que o edifício rui” segundo Simmel, “isso não significa outra coisa senão que as meras forças da natureza começam a predominar sobre a obra humana: a equação entre natureza e espírito humano desloca-se em favor da natureza”.

 

 

format=jpg
format=jpg
format=jpg
format=jpg
Ruína da Real Vinícola © Luís Ferreira Alves
Ruína da Real Vinícola © Luís Ferreira Alves
Ruína da Real Vinícola © Luís Ferreira Alves
Ruína da Real Vinícola © Luís Ferreira Alves

 

 

O objectivo principal deste projecto foi restabelecer o equilíbrio das forças entre a natureza e o espírito humano. Um equilíbrio que passou por uma negociação com ambos. Com a natureza, que reivindica, numa luta infindável, um espaço que outrora foi seu; o espírito humano manifestado há cem anos atrás e que construiu esse espaço; e aquele que obrigatoriamente terá de se manifestar hoje e dialogar com os anteriormente referidos.

Exemplo desse diálogo, são as árvores que se mantêm no interior de um dos edifícios e que foram mantidas, criando-se — para que tal fosse viável — pátios exteriores. O edifício voltou a ser ocupado, mas respeitou-se o direito adquirido pela natureza ao longo dos anos em que o local esteve ao abandono.

Procurou-se desenhar — sempre que possível — de acordo com o projecto original. Toda a volumetria exterior foi recuperada, o desenho das asnas de madeira manteve-se, reconstruiram-se carpintarias. Tentámos manter o espírito industrial do lugar.

 

 

Casa da Arquitectura © Luís Ferreira Alves
Casa da Arquitectura © Luís Ferreira Alves
Pavilhão multiusos © Luís Ferreira Alves
Pavilhão multiusos © Luís Ferreira Alves
Casa da Arquitectura © Luís Ferreira Alves
Casa da Arquitectura © Luís Ferreira Alves

 

 

Houve alteração de funções o que implicou novos espaços, infraestruturas e legislação a ser cumprida. As caixas de escadas em betão colocadas no exterior do edifício foram necessárias por razões de segurança contra incêndio. Optou-se por não as introduzir no interior devido ao impacto negativo que as mesmas teriam na estrutura de aço da laje que exprime toda a sua beleza na repetição quase infinita do módulo estrutural criado pelos pilares e as vigas. Foi necessário abrir-se janelas no alçado nascente do quarteirão. Uma vez que estávamos a introduzir um novo elemento no projecto, optámos por assumir o carácter contemporâneo da intervenção em vez de a dissimular, funcionando a janela como uma moldura que é encostada à parede, contrariamente às janelas existentes que são massa retirada à mesma.

Para além de procurar este equilíbrio entre as diferentes forças intervenientes, quisemos que o mesmo fosse visível e se manifestasse em toda a sua verdade porque acreditamos que a matéria deveria, neste caso particular, ser lida no espaço e no tempo.

 

 

format=jpg
format=jpg
format=jpg
format=jpg
format=jpg
Casa da Arquitectura © Luís Ferreira Alves
Casa da Arquitectura, zona de arquivo © Luís Ferreira Alves
Casa da Arquitectura, zona de arquivo © Luís Ferreira Alves
Casa da Arquitectura © Luís Ferreira Alves
Casa da Arquitectura © Luís Ferreira Alves
Casa da Arquitectura, loja © Luís Ferreira Alves
Casa da Arquitectura, loja © Luís Ferreira Alves
Casa da Arquitectura, loja © Luís Ferreira Alves
Casa da Arquitectura, loja © Luís Ferreira Alves
Casa da Arquitectura, loja © Luís Ferreira Alves
Casa da Arquitectura, loja © Luís Ferreira Alves
format=jpg
format=jpg
format=jpg
format=jpg
format=jpg
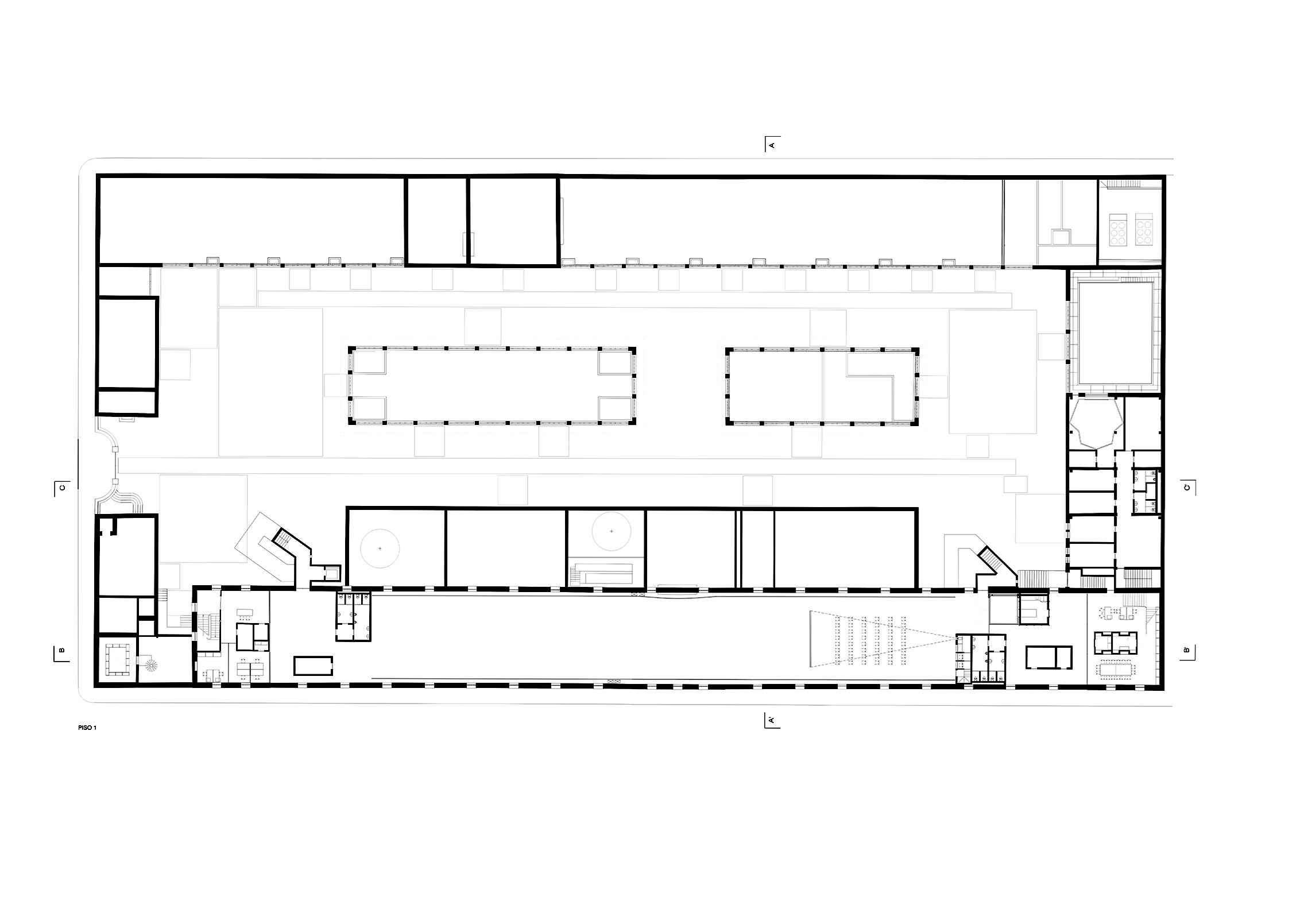
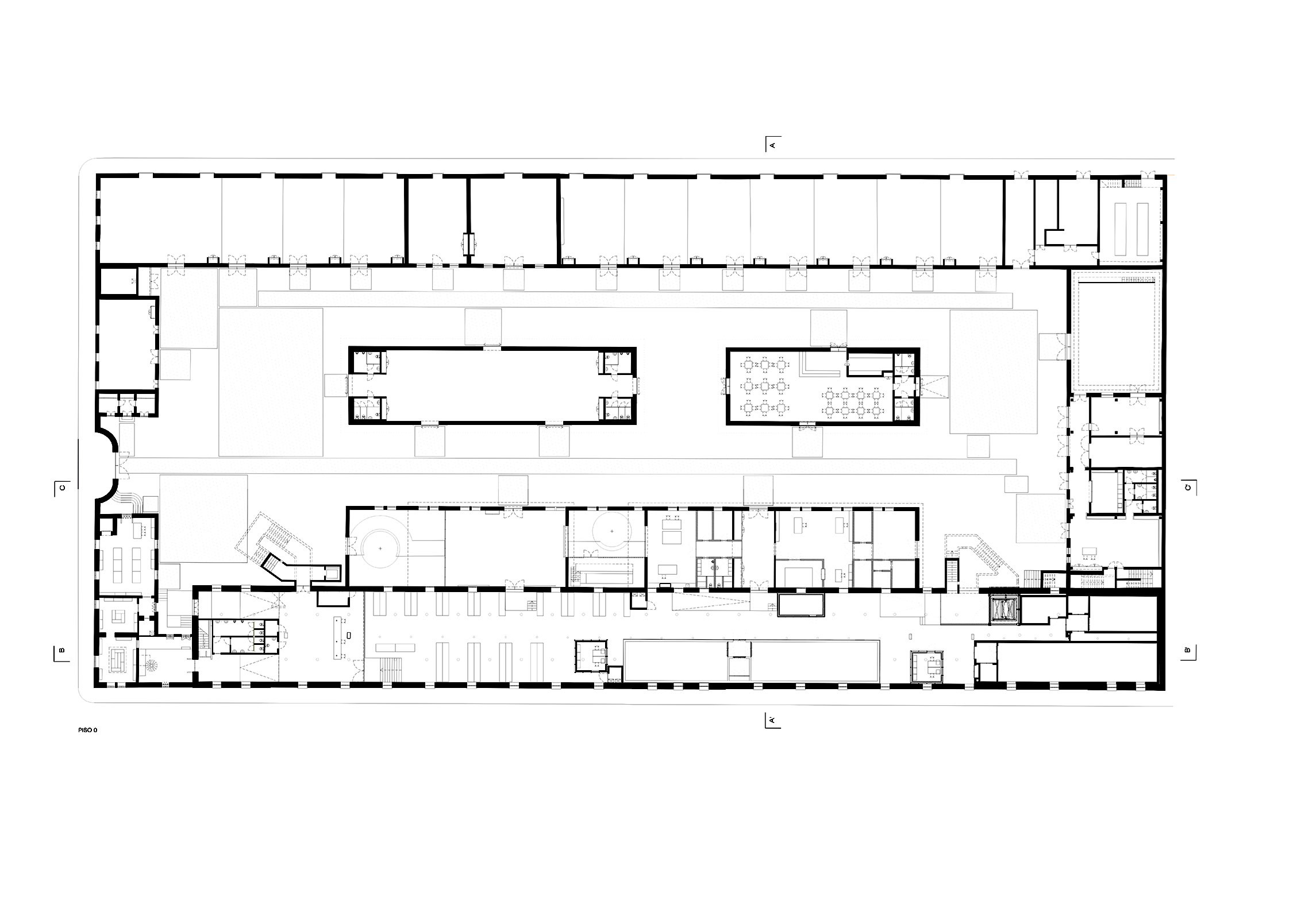
Piso 0
Piso 1
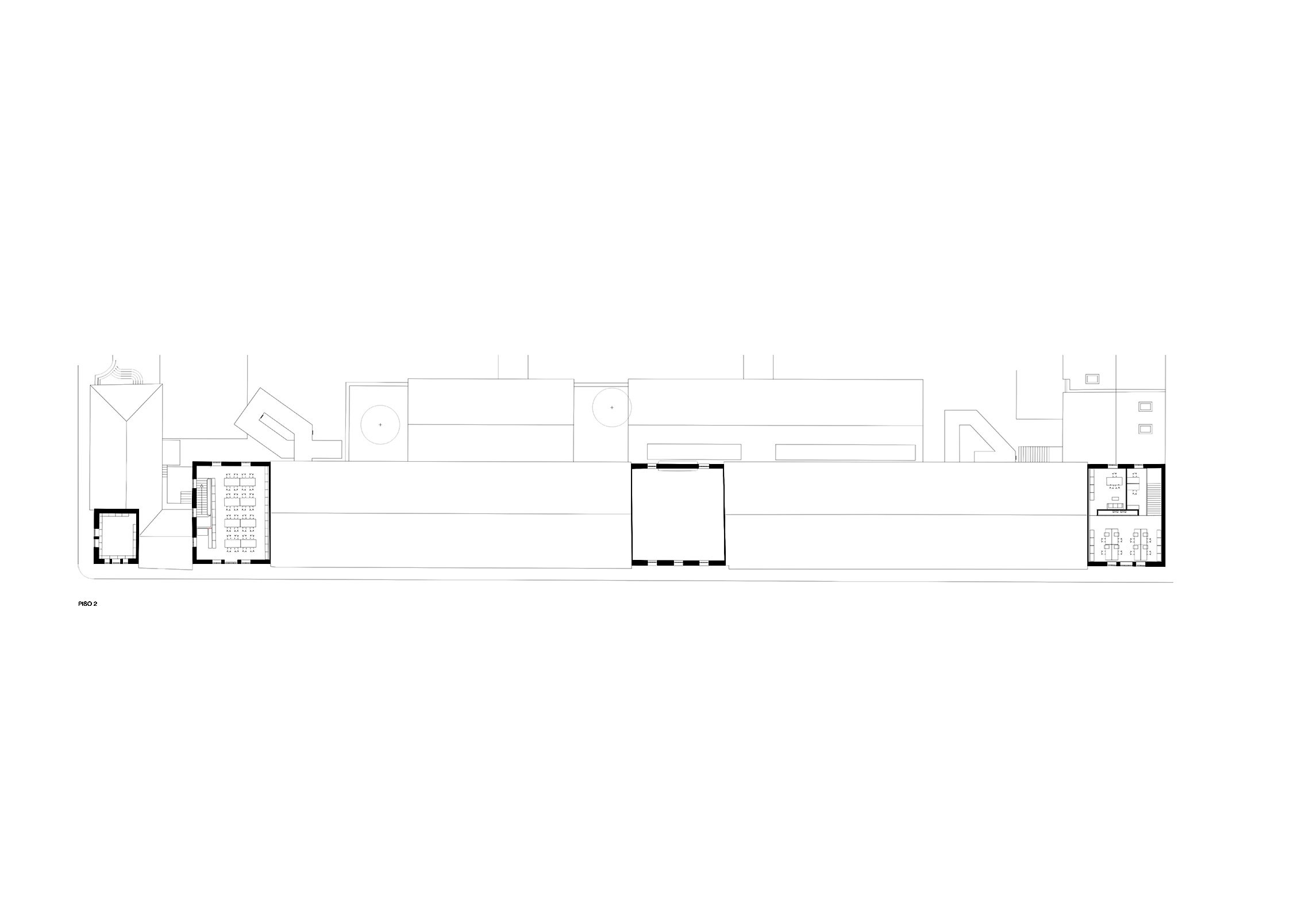
Piso 2
Cobertura
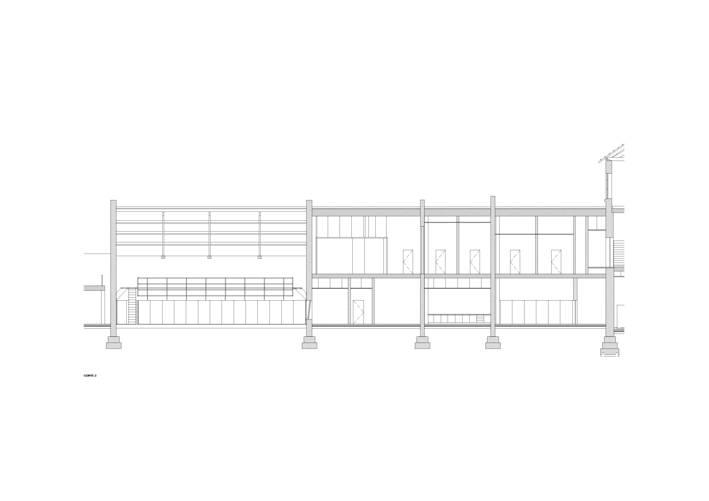
Cortes e Alçado Casa da Arquitectura

 

 

Orquestra Jazz de Matosinhos

 

No âmbito do projecto de reabilitação dos edifícios do complexo da Real Vinícola, para além da inserção da Casa da Arquitectura, instala-se também a Orquestra Jazz de Matosinhos. Esta instituição, sem instalações próprias até à data, promove a criação, a investigação, a divulgação e formação na área do Jazz, desempenhando o papel de uma Orquestra Nacional de Jazz.

No edifício localizado mais a sul do complexo da Real Vinícola, surgem assim as instalações que alojam o programa da Orquestra Jazz de Matosinhos, com um espaço para o projecto CARA (Centro de Alto Rendimento Artístico) onde promovem o diálogo entre arte, tecnologia e ciência, através de projectos multidisciplinares.

Esta ala conta com espaços para ensaios, gabinetes, salas de convívio, salas de formação e salas de gravação com maior ou menor capacidade consoante as necessidades.

Os princípios e exigências funcionais consolidaram estes espaços, guiando-se por todas as condicionantes impostas pelo próprio programa, com características inerentes e necessidades acústicas que limitaram as escolhas formais e materiais.

 

 

Orquestra Jazz de Matosinhos © Luís Ferreira Alves
Orquestra Jazz de Matosinhos © Luís Ferreira Alves
Orquestra Jazz de Matosinhos © Luís Ferreira Alves
Orquestra Jazz de Matosinhos © Luís Ferreira Alves
Orquestra Jazz de Matosinhos © Luís Ferreira Alves
Orquestra Jazz de Matosinhos © Luís Ferreira Alves
Orquestra Jazz de Matosinhos © Luís Ferreira Alves
Orquestra Jazz de Matosinhos © Luís Ferreira Alves

 

 

A ocupação deste espaço explora o vazio dos volumes abandonados com a conjugação de materiais que invadem e ocupam este edifício do complexo da Real Vinícola. A apropriação destes espaços com diferentes escalas, composições e conjugações de materiais resultam em experiências multissensoriais fruto do efeito acústico criado em determinados espaços.

O contraste é sentido entre o exterior do edifício, amplo e luminoso, e o interior, que se fecha em cada espaço através do corte acústico proporcionado, levando consequentemente a diferentes intensidades de temperatura. Os interiores funcionam como um instrumento, num jogo entre a alternância de elementos, como o ritmo das ripas de madeira e o peso da pedra pré-existente preservada, levando a uma diversificação de texturas, de cores e de resultados de iluminação, que influenciam cada percepção e experimentação espacial.

Ao explorar as potencialidades dos sentidos e o impacto que estes têm na apreensão de um espaço, tentou-se criar esta harmoniosa conjugação dos materiais novos e pré-existentes, mantendo a memória e a história do edificado presentes na atmosfera projectada. ◊

 

 

Orquestra Jazz de Matosinhos © Luís Ferreira Alves
Orquestra Jazz de Matosinhos © Luís Ferreira Alves
Orquestra Jazz de Matosinhos © Luís Ferreira Alves
Orquestra Jazz de Matosinhos © Luís Ferreira Alves
format=jpg
format=jpg
format=jpg
format=jpg
format=jpg
format=jpg
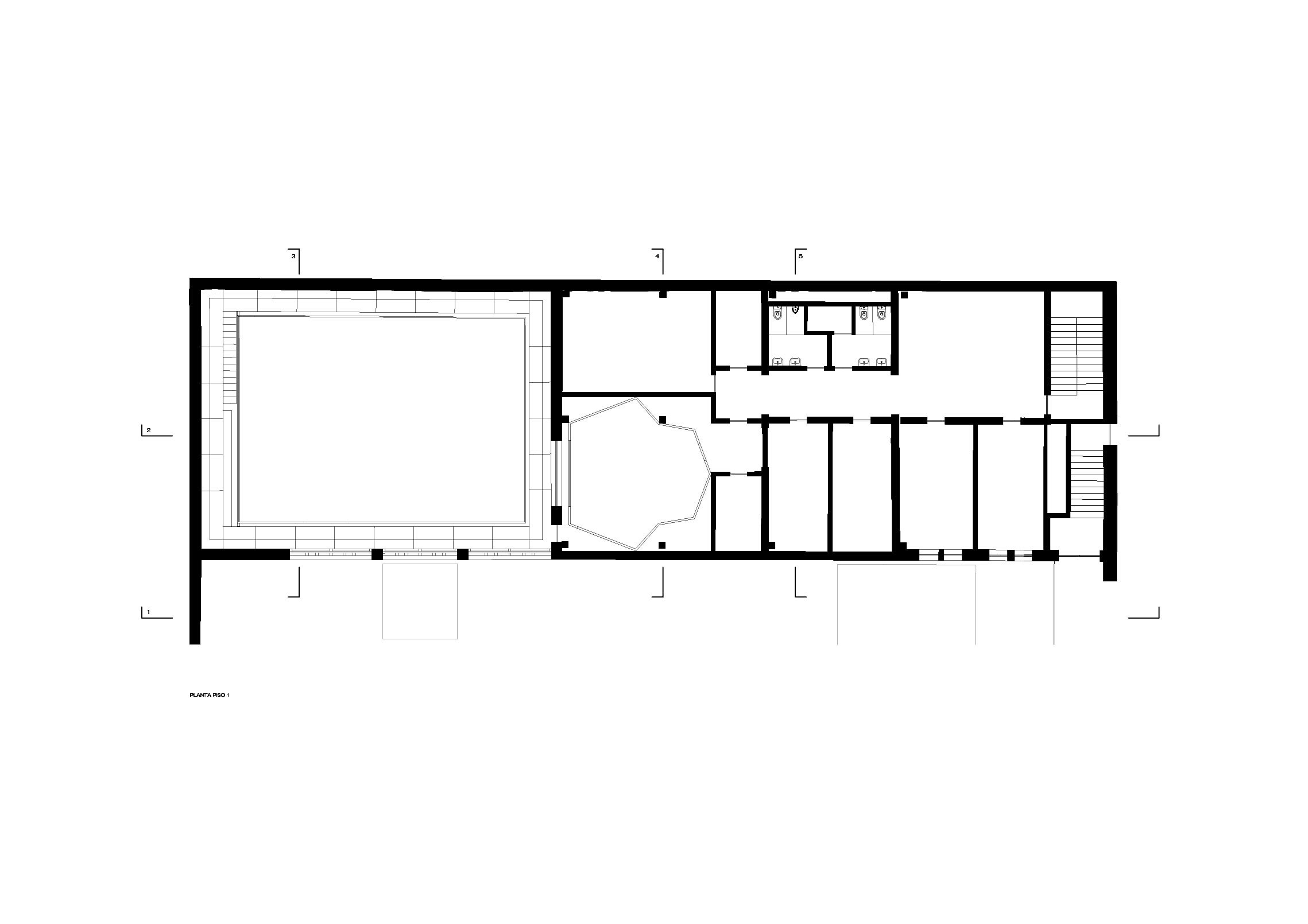
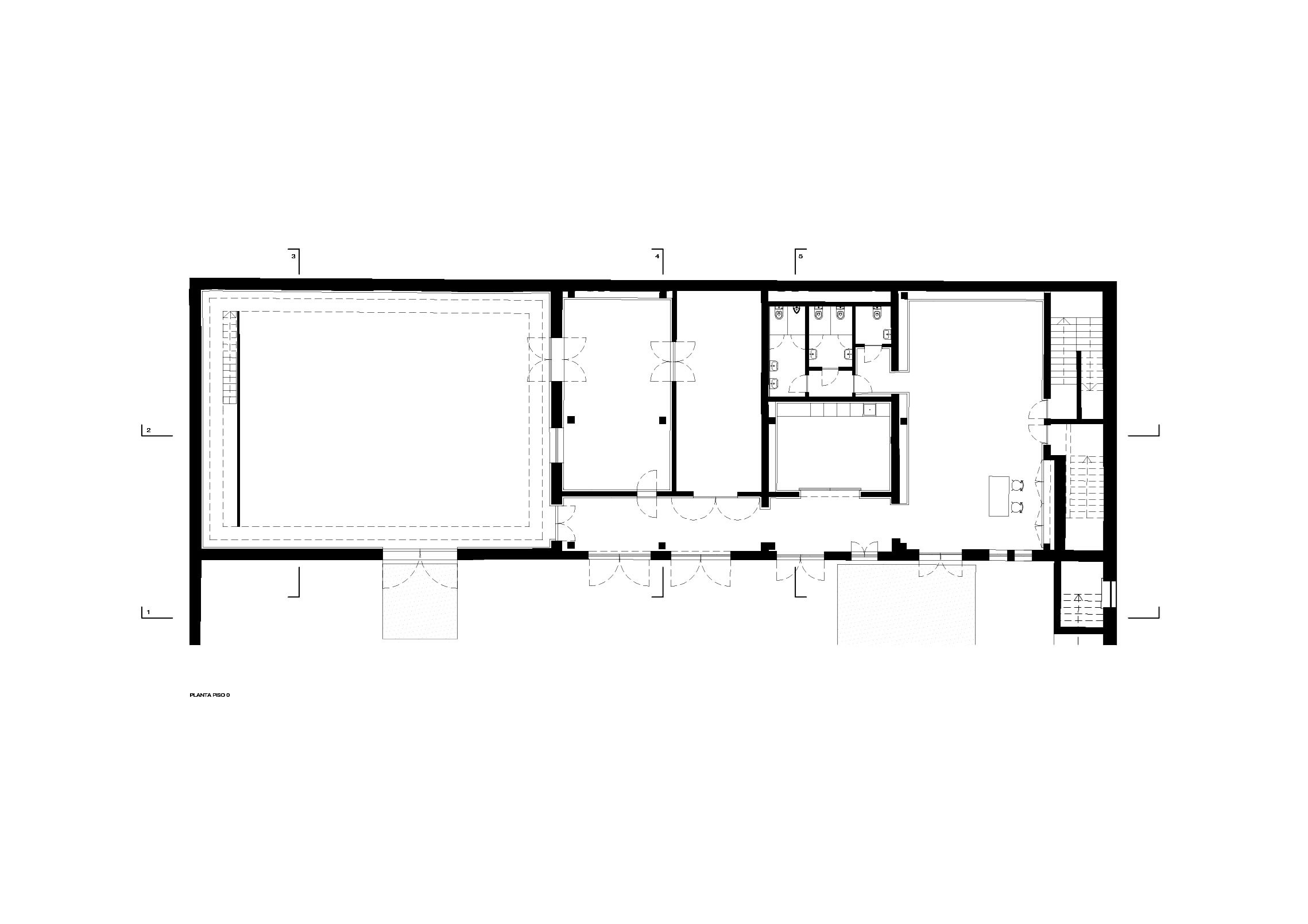
Piso 0
Piso 1
Cobertura
Alçado
Corte longitudinal
Cortes transversais

 

 


 

 

Arquitectura
Guilherme Machado Vaz
www.guilhermemachadovaz.pt
Cliente
Câmara Municipal de Matosinhos
Áreas
Casa da Arquitectura: 4.700m2
Orquestra Jazz de Matosinhos: 800m2
Pavilhão multiusos: 300m2
Espaços comerciais: 1.200m2
Ano
2017
Fotografia
Luís Ferreira Alves